Propriétés à vendre - Valais

  • 3 Année(s)
  • 1583 vues

23107 - BRUSON Chalet 6 pièces

route principale, Bruson, 1934, VS, Réf 23107, Switzerland
CHF 2 500 000

Description

Chalet
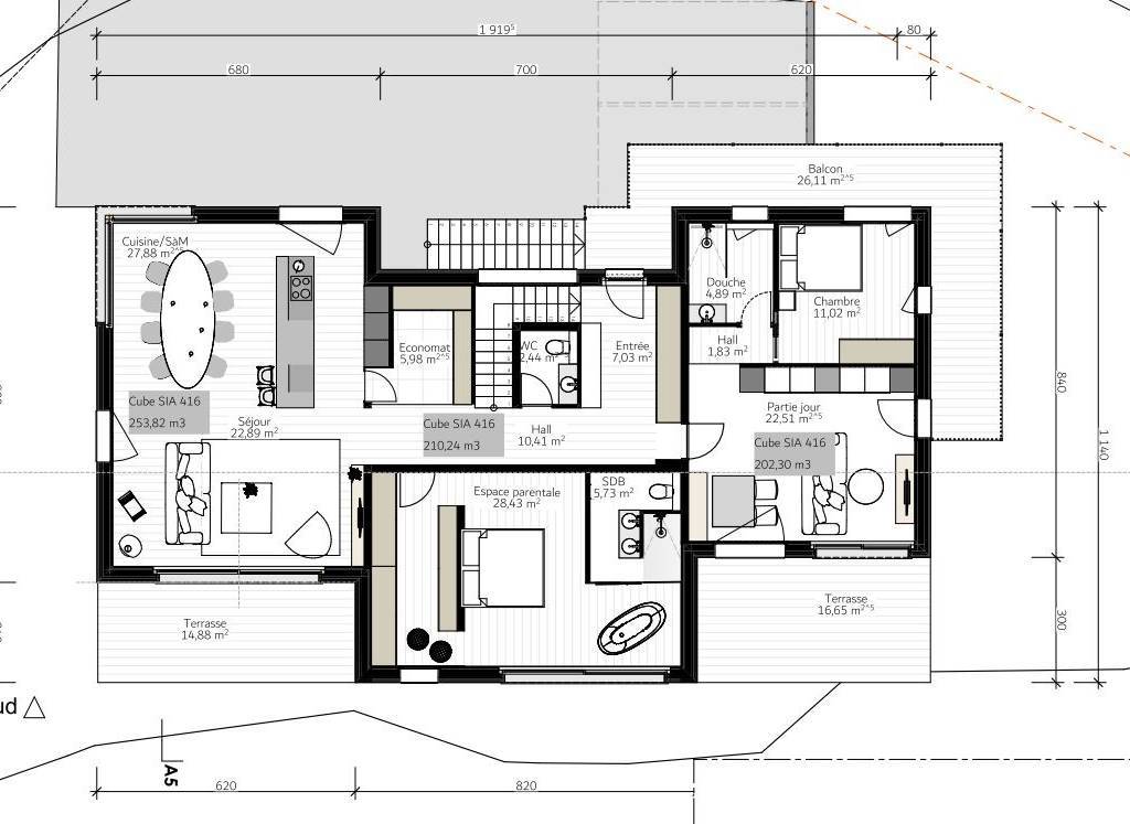
BRUSON villa individuelle sur 3 niveaux de 210 m2.

Projet de construction, villa individuelle sur 3 niveaux de 210 m2.

Sous-sol avec garage pour 2 véhicules, hall d’entrée du rez inferieur, buanderie et local technique.

Le rez de chaussée est divisé en 3 parties, soit : cuisine/coin à manger/séjour dans un volume individuel, chambre principale avec pièce d’eau, dans un 2ème volume, qui accueille également le hall d’entrée principal, le wc visiteurs et l’économat, et le 3ème volume occupé par un petit appartement 2 pces qui peut faire partie intégrante de l’appartement principale (comme 3ème chambre) ou qui peut être loué séparément.

L’étage mezzanine est composé d’un espace bureau, d’une pièce d’eau et d’une chambre entourée d’espace de rangements. Terrain de 1000m2 4 places de parc extérieures Prix 2'500'000.- Réf 23107

Nicolas Bouilliez
nicolas@abimmo.ch

Contacter

 Caractéristiques

Information de base

Chambre(s) à coucher
4
Salle(s) de bain
3
Surface au sol
210.00 m²

 Situation

 Vidéo

  Nicolas Bouilliez

  Demande d'informations