Propriétés à vendre - Valais

  • 6 month(s)
  • 576 vues

réf 202577 - CHEMIN DESSUS (Val de Bagnes) 4.5pièces

Chemin dessus, Chemin Dessus, 1927, VS, Réf 202577, Switzerland
CHF 1'800'000.-

Description

Chalet

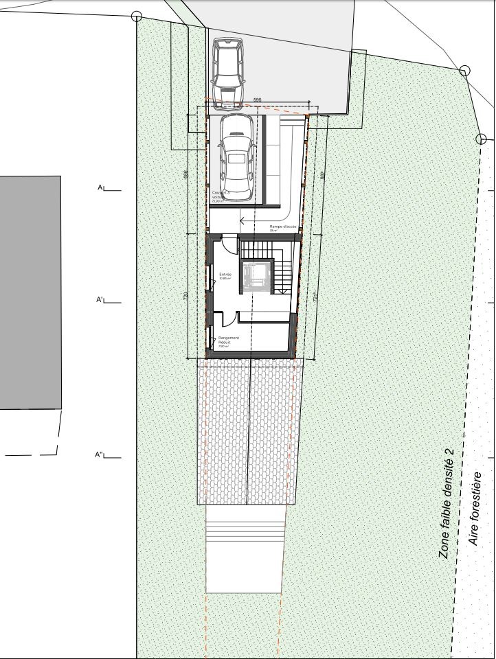
À vendre – Villa neuve à construire avec vue panoramique – Chemin-Dessus (Val de Bagnes)

Prix sur demande

Située dans le hameau prisé de Chemin-Dessus, sur la commune du Val de Bagnes, cette villa neuve à construire offre un cadre de vie exceptionnel, à seulement quelques minutes de Verbier et de Martigny.

Le projet prévoit la réalisation d’une villa individuelle d’environ 200 m² de surface de vente, développant un volume SIA de 923 m³, répartis sur trois niveaux (entresol, rez-de-chaussée et étage), avec terrasse, couvert à voiture et accès couvert.

Bénéficiant d’une orientation optimale et d’une vue panoramique imprenable sur les montagnes environnantes, cette propriété offre à son futur propriétaire la possibilité de personnaliser les finitions intérieures selon ses envies.

Un bien rare, idéal pour une résidence principale alliant confort moderne, calme, et nature.

Nicolas Bouilliez
nicolas@abimmo.ch

Contacter

 Caractéristiques

 Situation

  Nicolas Bouilliez

  Demande d'informations